avatar_ranger

Установка БМС (сборка)

Автор ranger, 19 Янв. 2012 в 20:16

« назад - далее »

0 Пользователи и 1 гость просматривают эту тему.

илс

Цитироватьили они загораются только когда батарея будет полностью заряжена и пойдет балансировка батареи?
Да, именно так.

os-999

Цитата: Wayfarer от 06 Май 2015 в 14:26
[user]os-999[/user], на этих БМС индикатор загорается когда при зарядке на соответствующей ячейке достигается 3,55в, а когда достигается на ней 3,75в БМС отключает зарядку.
У меня такая же, только 16s и симметричная 30А/30А, они чуть подороже. Гугл переводит так: Serial port=симметричная, sub-population - не симметричная, заряд через отдельный порт.
Если все крутится - баллансирные провода подключены правильно. При неправильном подключении баллансирных - мгновенная смерть БМС.

получается я все правильно подключил (балансирные), раз после зарядки (5 мин) все работает, колесо крутится, монитор горит. Ведь все питание подается через БМС..??    а то я выводил дополнительные дубликаты балансирах проводов для подключения Cell-Log-а, БМС начал подключать когда все ячейки были запакованы, и все боялся с балансирами проводами напутать.. :bw:
Conhismotor 1000W, LiFePo4 16S3P - 48V 27Ah на пакетах 9Ah,

Wayfarer

Правильно боялись. Ибо БМС не дешевая, а сгорит - моргнуть глазом не успеете.
Я 2 шт спалил, опыт большой.
Когда не правильно подключил баллансиры - то БМС обычно не пропускает через себя ток, т.е. колесо крутиться не должно. А если крутится значит все верно. Только я не знаю, где там порт разрядный, а где зарядный. У меня он один
Я как делал: подключил БМС, включил на зарядку. Загорается 1 светодиод (или несколько), через минуту где-то з/у должно отключиться. Это значит, что по верхнему пределу бмс отключает. Ура! Далее должна быть баллансировка, з/у периодически включается и выключается, в результате должны загореться все светодиоды, на это может уйти много времени.
Затем ставил на разряд, точечные светильники 50w 12v 4шт последовательно, и через ваттметр (можно и без него). Примерно прибросил, зная номинальную емкость, когда кончится заряд, и в конце внимательно следил, чтобы БМС отрубило нагрузку. Если отрубает - то все, БМС полностью рабочая!!!
2х350вт полный привод, 14s5p tesla 21700

os-999

#147
ну хоть немного успокоили) поставил на заряд батарею, (до сборки заряжалась каждая ячейка, но с момента начала сборки батареи и окончания прошел примерно месяц), уже 2 часа заряжается стоит, а ни один индикатор так и не засветился (зарядник 5 Амперный, вот такой
- при зарядке верхний индикатор горит красным, а нижний зеленым), при чем так же горят индикаторы и при простом подключении зарядного устройства в сеть, без подключенной батареи - может есть у кого такой зарядник? кто знает что означают эти индикаторы?.

На конхисовском дисплее показывает полный заряд батареи (вряд ли верно показывает, т.к. аккум у меня 16S3P LiFePo4), этот же дисплей показывает напряжение в 53,4V, а вот если замерить напряжение на крайних балансировочных проводах в БМС то мультиметр показывает 49,9V.

Вопрос - как проверить, идет ли заряд на батарею от БМС?   а то мне кажется что заряд не идет на батарею.. 2 часа стоит на зарядке, а зарядное устройство все еще холодное, кулер даже не думал включаться, вольтаж батареи стоит на месте..

Что если, у меня симметричная БМС (я поидее такую и заказывал у китайца, но вот что он прислал я хз), перед подключением сверил иероглифы на самой БМС с иероглифами в инструкции на схемах подключения, так у меня иероглифы совпали с не симметричной. Подключил заряд и разряд на разные каналы.  Что будет если у меня на руках симметричная БМС, а я подключил как не симметричную? 
Conhismotor 1000W, LiFePo4 16S3P - 48V 27Ah на пакетах 9Ah,

Wayfarer

На батарею заряд должен идти, иначе куда же он девается?
У вас не симметричная, судя по наклейке. Разрядный ток 80, зарядный - 10А. У меня 2 числа одинаковые там после иероглифов.
А что будет если симметричную подключить как несимметричную не знаю... А вот если наоборот, то наверное не будет работать баллансировка. А вот если перепутать разрядный и зарядный каналы - ничего хорошего не будет точно.
Заряжайте и ждите синих огоньков!
Вполне возможно что ваша з/у на 5А выдает "китайские" 5А, такое бывает. Поэтому долго заряжает. 
2х350вт полный привод, 14s5p tesla 21700

os-999

надеюсь что вы правы.. иначе я где то напортачил с подключением...
аккум у меня на 27Ah, с учетом того что все ячейки были заряжены "месяц" назад и потом лежали на полке, не думаю что они ушли в глубокий разряд...  дозарядить то до 3.65 эт не полностью батарею заряжать...  за 2 то часа должно было напряжение с 49,9 вольт сдвинуться вверх.. но оно так и стоит...
хотя лучше долго, чем вообще никак)   
Conhismotor 1000W, LiFePo4 16S3P - 48V 27Ah на пакетах 9Ah,

os-999

#150
проблема найдена. Зарядник то ли сгорел, то ли прислали бракованный. Не выдавал напряжение вообще. Разобрал, нашел сгоревшую дорожку и предохранитель.



P.s.. Сгорел однако. Китайцы неверно припаяли плюсовой и минусовой выходы.. На минус почему то повешали красный провод, а на плюс черный. Я когда срезал TRS разъем и менял на XT90 по общепринятым законам принял красный за плюс. А внутрь заглянуть не догадался. Видать сгорел когда я подключил зарядник к зарядному разъему батареи... :-(
Conhismotor 1000W, LiFePo4 16S3P - 48V 27Ah на пакетах 9Ah,

Telebas

Товарищи,пожалуйста подскажите мне.
Установил БМС, на аккумулятор 8p13s. Зарядил её до 54,6 вольт,зарядным устройством.
После- отключил балансировочные провода и посмотрел на заряд каждой ячейки и получил разброс по банкам от 4,30 до 4,13.
Соответственно вопрос- Бмска должна в течении какого то времени уравнять эти значения до 4,2 на банку? или она не рабочая?
изначально все банки были заряжены по 4,10вольта (до подключения БМС)
Бмс - http://ru.aliexpress.com/item/13-lithium-battery-protection-board-48v-lithium-battery-BMS-30A-continuous-60A-peak-discharge/1741121963.html?recommendVersion=1
Б.Э.Ш Электро.
Пробег-2000км
72v 20s7p lion
Видео самоката

илс

[user]Telebas[/user], в резистивных БМСках, как с фото, выравнивание происходит во время процесса заряда, перед его окончанием.
Ваши замеры свидетельствуют, что БМС неисправна.
Хотя, если заряд начинался с 4.1 а закончился, как вы написали, я бы перепроверил эти цифры.
Т.к. выглядит не оч. логично, даже для неиспр. БМС.  ;-)

ДмитрийМver2.0

Сразу снимать БМС может и не стоило.. при токах балансировки в миллиамперы и неизвестном заряднике и состоянии элементов может она ещё сутки например балансировать.. Я снял бы когда резисторы все стали холодными и тогда бы только измерял. Ещё и прибор желательно хоть как-то точный..  не каждый тестер достоверно мв показывает, хотя наверно общая картина будет примерно верной.
73! Дмитрий, RK3AOR.

Telebas

#154
 Товарищи!
Цель- увеличить ёмкость батареи :-)
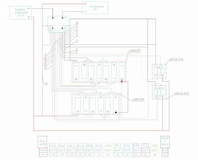
Возник ещё один вопрос, возможно ли по такой схеме подключить к моей основной батарее LION (соединёны последовательно 7s6p  и 6s7p) добавить ещё 2 батареи LIPO 3s паралельно ?
Конкретно интересует возможность подключения балансировочных проводов у Lipo для параллельного подключения к основной LION батарее как показано на позициях 7(21,6v),5(14.4v),12(39.6v),10(32.4v).
Или необходимо сначала запаралелить балансировочные провода двух LIpo, а потом подключить их к позициям 2(3,6v),3(7.2v),4(10.8v)(что бы вольтаж соответствовал)
Есть ли принципиальная разница в том- куда подключать балансировочные - или нет

Не могу с наскока разобраться...
Б.Э.Ш Электро.
Пробег-2000км
72v 20s7p lion
Видео самоката

Telebas

Прорисовал 2 варианта подключения, какой из них верный?
и сделал фото в ч/б, что бы было лучше видно)


Б.Э.Ш Электро.
Пробег-2000км
72v 20s7p lion
Видео самоката

илс

#156
Странно, что никто не отвечает.
Эх, обленились старожилы.  :neg:

А вам [user]Telebas[/user], надо было сразу прописать отличия 1-го и 2-го варианта.
Лично я их не увидел. Увидел, что есть принципиальная ошибка в схеме, а главное, в конфиге.
На схеме изображены два блока по 7S+6S включенные последовательно.
Хотя написано 2раза по 7S/
При этом, в нижнем ряду контактов 14, что соотв. конфигу 13S
Как и напряжение. 13S=48В номинальных.
Посмотрите внимательно, у вас там прописано 2 контакта B7 с разными напряжениями.  :ah:
Другая принципиальная ошибка, это 2 котлеты липо включенные ....парарельно.  %-)
С другой стороны, 2 раза по 3S никак не дадут 14S.  :-\
В общем, разберитесь с конфигурацией балансирных проводов и опишите внятно свой конфиг.
От конфига и идет вся пляска. :-\

А нарисовано красиво, за это +1.  :wow:

TRO

#157
Написано что есть два раза по 7S, а на рисунках одна 7S а вторая 6S. Надо определится где правильно, в тексте или на рисунке, опишите точно что у вас есть своими словами если путаетесь в формулировках. Иначе вам подсказывать что либо безсмыслено. Оба рисунка неправильные, на всех присутствуют варианты где к одной банке подключены две последовательные, а это уже практически короткое замыкание.

Батарею на 13s у которой все ячейки равны по емкости, нельзя усилить по емкости двумя катлетами по 3s. И никакая комбинация балансирных проводов тут не поможет.

Wahoo 2012 29er, +собран складной двухосис на раме"Land Rover" 69er с эл. мотором, и и МОНОКОЛЕСО

Piton

#158
Здравствуйте.
Есть два аккума Liion ячеек

13s p5 48в 13Ач
13s p6 15.6ач

На каждом будет своя БМС, пожалуйста подскажите, как правильно осуществить подключение 2х бмс к контроллеру (Встроенный Bafang 48 750)
какие промежуточные звенья цепи потребуются?


Witaliy

Может не 3s, а 13s ?
Непонятно, как хотите соединять?.
Два электровелосипеда, электроквадрик, электротанчик "Ураган". В планах электросамокат 2.0(1000ватт) и электросноубайк(QS 3000Watt приехал).

Piton

Цитата: Witaliy от 24 Авг. 2015 в 04:09
Может не 3s, а 13s ?
Непонятно, как хотите соединять?.

Все верно, 13, опечатка.

Как соединять и сам не знаю, поэтому обратился. Аккум еще не собран. Перед заказом аккума решаю.
Два аккума должны отдавать заряд одновременно, но в случае отключения одного, например поломки или отключения по другой причине БМС, второй довезет.

TRO

[user]Piton[/user], Если обе половины будут использоватся вместе, то настоятельно екомендую оставить одну БМС. Если батарея еще не собрана, то рекомендую собрать половины из например 7S и 6S, так к БМС из одной половины во вторую меньше проводков тянуть.

Wahoo 2012 29er, +собран складной двухосис на раме"Land Rover" 69er с эл. мотором, и и МОНОКОЛЕСО